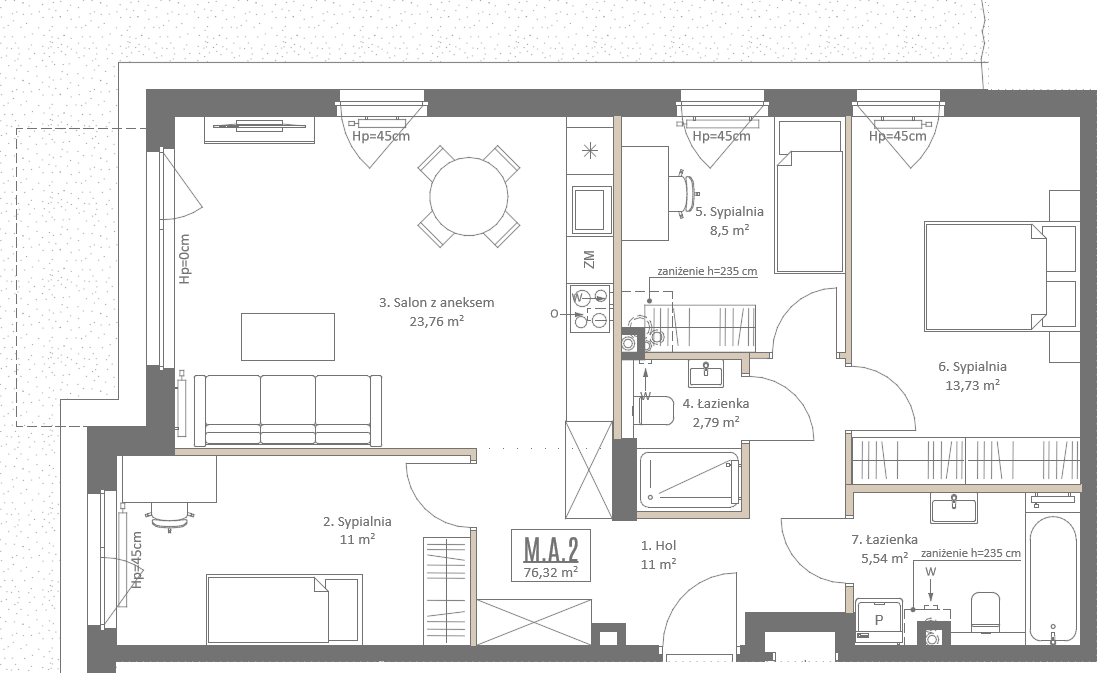
Botanika Mieszkanie nr 2 / parter

Liczba pokoi: 4
Pow. użytkowa: 76,32 m2
Ogród: 175,80 m2
Piętro: parter
Data odbioru: II kw. 2027
Cena za m2: sprzedane
Cena: sprzedane

Zapytaj o mieszkanie!

Skorzystaj z formularza, a nasi doradcy oddzwonią w ciągu kilku godzin

Agnieszka Skierka
Specjalista ds. sprzedaży
603 510 839

Komercjalizacja
Wynajem lokali
607 607 464
* pola wymagane
* pola wymagane

Znajdź podobne mieszkanie

mieszkania o zbliżonej powierzchni

zobacz pełną ofertę