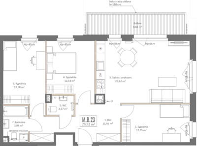
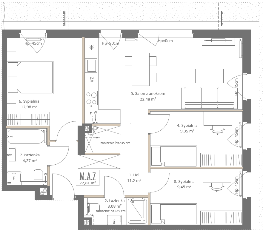
Botanika Mieszkanie nr 7 / parter

Liczba pokoi: 4
Pow. użytkowa: 72.81 m2
Ogród: 97,20 m2
Piętro: parter
Data odbioru: II kw. 2027
Cena za m2: 13445.96
Cena: 979 000 zł
Historia

Data

Zakres

Cena

2025-10-13 979 000 zł

Zapytaj o mieszkanie!

Skorzystaj z formularza, a nasi doradcy oddzwonią w ciągu kilku godzin

Barbara Robak
Specjalista ds. sprzedaży
Opiekun inwestycji Luna, Domy u Źrodła Marii, Botanika 
607 607 216

Agnieszka Skierka
Specjalista ds. sprzedaży
Opiekun inwestycji Aleja Wiśniowa Pogórze
603 510 839

Komercjalizacja
Wynajem lokali
607 607 464
* pola wymagane
* pola wymagane

Znajdź podobne mieszkanie

mieszkania o zbliżonej powierzchni

zobacz pełną ofertę