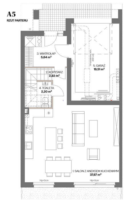
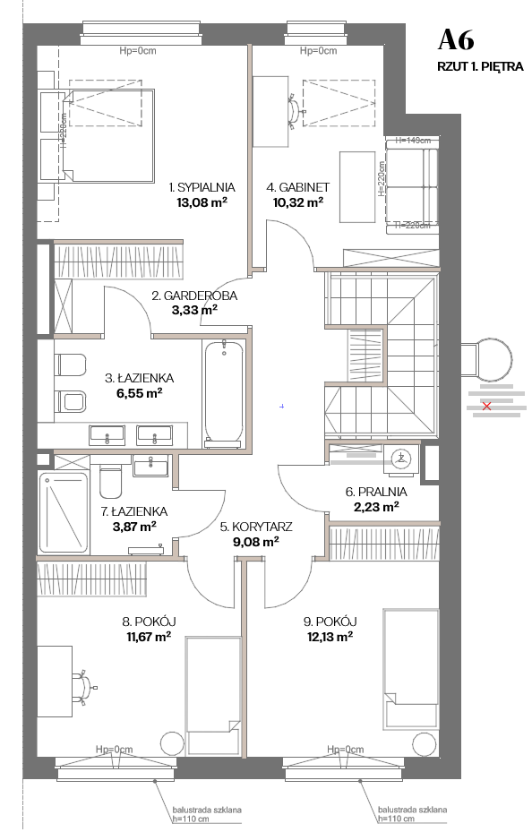
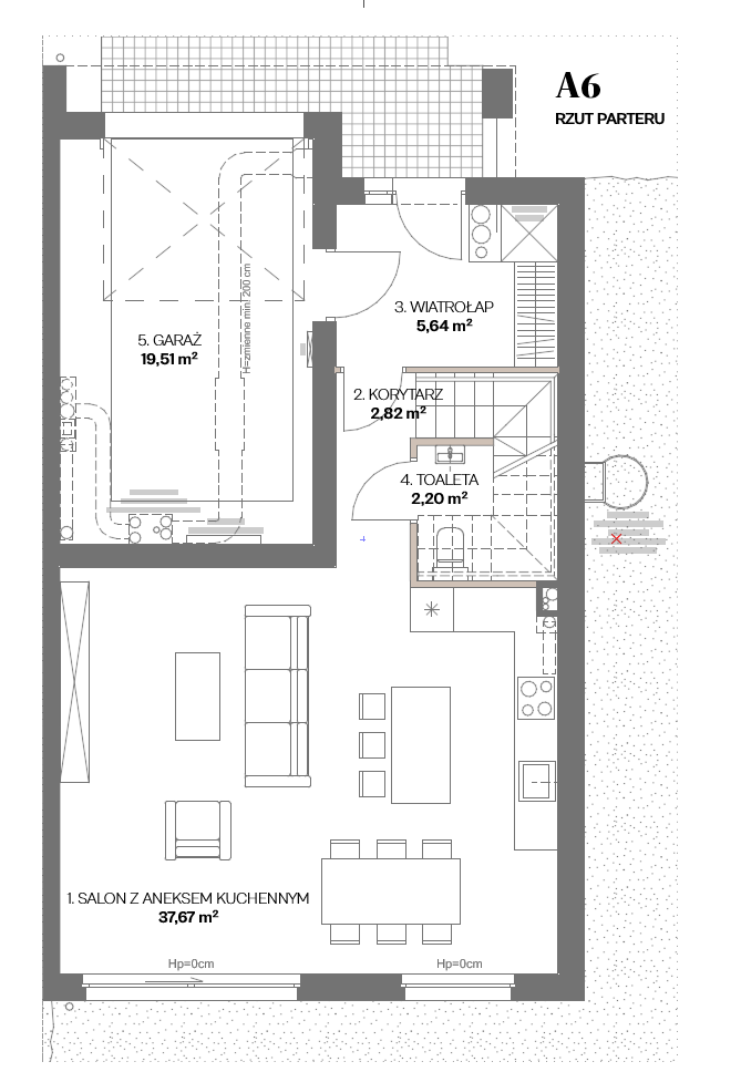
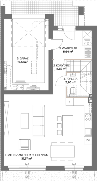
Domy u Źródła Marii Dom nr 6 / parter

Liczba pokoi: 5
Pow. użytkowa: 140.1 m2
Ogród: 124,50 m2
Piętro: parter
Data odbioru: I kw. 2027
Cena za m2: Rezerwacja
Cena: Rezerwacja
Historia

Data

Zakres

Cena

2025-09-11 1 850 000 zł

Zapytaj o dom!

Skorzystaj z formularza, a nasi doradcy oddzwonią w ciągu kilku godzin

Barbara Robak
Specjalista ds. sprzedaży
Opiekun inwestycji Luna, Domy u Źrodła Marii
607 607 216

Agnieszka Skierka
Specjalista ds. sprzedaży
Opiekun inwestycji Bonus, Aleja Wiśniowa 
603 510 839

Komercjalizacja
Wynajem lokali
607 607 464
* pola wymagane
* pola wymagane

Znajdź podobny dom

domy o zbliżonej powierzchni

zobacz pełną ofertę